The Hoppe 21mmØ nylon lever handles are ideal for schools, hospitals, care homes, or any environment where colour coding is required. They have been included on a successful fire test to BS EN1634-1 for use on 30 minute fire doors. Supplied in pairs complete with spindle & fixings.
Specification :
- Finish: Dove Grey RAL7506
- Unsprung - only suitable for use with locks and latches designed for use with unsprung door furniture
- Steel cored
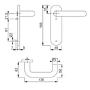
- Handle diameter: 21mm
- Plate size: 165mm x 46mm
- Fire tested to BS EN1634-1
- Complete with spindle & fixings
- Supplied in pairs